1. General information
2. Objectives of the intervention
Goals of the intervention
1) Creating a garden space for people who will attend events based on practical gardening;
2) Starting a public place for therapy based on activities such as work with plants, art therapy, and activities that support the mental and physical health of the participants;
3) Enhancing the aesthetics of the place;
4) Underlining the importance of the dorm’s area and the need for its renewal and modernization so that it can serve multiple functions and cater to the needs of disabled residents;
5) Creating an open space for everyone concerned about their mental health [3].
2) Starting a public place for therapy based on activities such as work with plants, art therapy, and activities that support the mental and physical health of the participants;
3) Enhancing the aesthetics of the place;
4) Underlining the importance of the dorm’s area and the need for its renewal and modernization so that it can serve multiple functions and cater to the needs of disabled residents;
5) Creating an open space for everyone concerned about their mental health [3].
Quantitative targets
Unknown
Monitoring indicators defined
Visitors traffic in the garden [3]
Sustainability challenge(s) addressed
Implementation activities
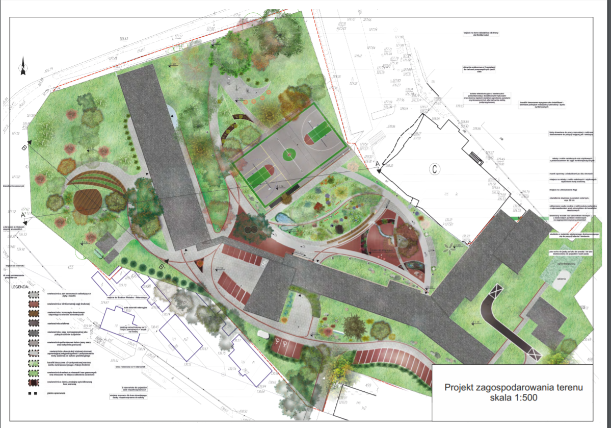
1) Improving the infrastructure by replacing some uneven sidewalks and perimeters, maintaining existing plants [1];
2) Renovating the facade of the school and the dormitory, building new communication lines and painting a mural on one of the external walls of the facility;
3) Construction of the multipurpose playground in the asphalt football field;
4) Construction of the seating terrace in the orchard in front of the dormitory;
5) Creation of the facilities for the horticultural therapy and gardening;
6) Planting new greenery in the school yard [2].
2) Renovating the facade of the school and the dormitory, building new communication lines and painting a mural on one of the external walls of the facility;
3) Construction of the multipurpose playground in the asphalt football field;
4) Construction of the seating terrace in the orchard in front of the dormitory;
5) Creation of the facilities for the horticultural therapy and gardening;
6) Planting new greenery in the school yard [2].
3. NBS domains, ES and scale
4. Governance and financing
5. Innovation
Type of innovation
Novelty level of the innovation
Please specify novelty level of the innovation
Unknown
Replicability/Transferability
Please specify Replicability/Transferability
Unknown

